【売家】宮若市龍徳 5LDK

| 
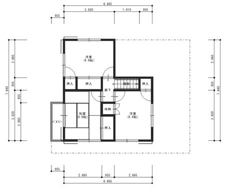
| | 平面図 1階 | 平面図 2階 |
令和8年3月11日現在
| 所在地 |
宮若市龍徳393番地26 |
| 建築年 | 1995年 |
|---|
| 間取り |
5LDK |
| 建物面積 | 128.56平方メートル |
| 土地面積 | 246.44平方メートル |
|---|
| 売買の条件 |
売買希望:8,800,000円 | | 設備情報 | | 台所(ガス) | 風呂(ガス) | 水道(上水道) | | トイレ(水洗/洋式) | 排水(下水) | |
|
|---|
| その他 | 一部増築未登記部分あり 崖条例 |
|---|
位置図
| お問い合わせ先 |
中村工務店株式会社
住所 田川郡福智町金田1060番地6 電話 0947-22-9015 |
|